二世帯住宅にするために3階と4階をリノベーション
ご両親と二世帯として住むことになったため、リノベーションをしたいとご友人からの紹介にてご依頼を承りました。3階と4階が新たな住まいになるため、好みの仕様で全体的に新しくしたいとご要望。具体的なイメージをお持ちでしたのでイメージ画像を送っていただき、「理想の住まい」を叶えるため綿密に打ち合わせをさせていただきました。
収納を充実させるために、浴室の位置を変更し広々としたウォークインクローゼットをご提案しました。また、洗面化粧台周辺に造作の収納棚を設置することで使い勝手を格段に良くしました。
施主様のこだわりが光る壁紙は、空間ごとに色んな表情が楽しめます。
| 築年数 | 約25年 |
|---|---|
| 地域 | 東京都台東区 |
| 工期 | 約2か月半 |
| 面積 | 約141㎡ |
| 施工箇所 | 3階・4階 |
| 施工内容 | リノベーション |
| 施工費用 | 1469万円 |
| 使用商材・建材 | ・キッチン収納:LIXILリシェルSI(キッチンクローゼット・フロアキャビネット・ウォールキャビネット) ・キッチンアンダーカウンター:スタイルフィット ・ユニットバス:TOTO/SYNLA(シンラ)1618 ・洗面台:TOTO/オクターブ W1200 ・トイレ (3階・4階):TOTO/ネオレストRS3 ・建具:Panasonic/ベリティスシリーズ |
お客様からのご要望
周りの友人・先輩からの紹介でエル・アップさんを知り、問い合わせしました。
4階建ての2階に両親が住んでおり、3・4階に自分たち家族が移り住むことになり、リノベーションをお願いしました。
せっかくの機会なので好みの仕様で全体的に新しくしたいと考えています。値段の部分の相談以外にも助成金や借り入れの相談にものってもらいたいです。
エルリノからのご提案
玄関からの使いやすさ・アクセスしやすさを再度検討し、玄関正面を浴室からウォークインクローゼットにすることを提案しました。買い物や外出の際に必要な荷物を玄関入ってすぐに収納することができ、より便利になりました。
洗面スペースに収納をたっぷり確保し、そこで使うものは全て収納できる空間へ。可動棚を設置し、空間を有効活用することが出来ました。
幅を取っていた洗濯パン横の洗面台を無くすことでスペースが増え、洗面化粧台周辺に大容量収納スペースを確保しました。
LDK(リビング・ダイニング・キッチン)は具体的なイメージをお持ちだったため、イメージ画像を送っていただきご希望を叶えていきました。各空間ごとにお好みの壁紙をセレクトいただき、色んな表情が楽しめる住まいになりました。
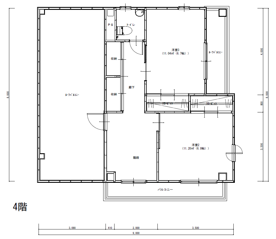
間取り図
3階は動線を再度検討し、浴室をトイレ横に移設、玄関入って正面をウォークインクローゼットにしました。
4階は間取り変更は行わず、すべて一新されました。
施工前
施工後
LDK(リビング・ダイニング・キッチン)
天井と床を木目調にすることで、木のぬくもりを感じるリラックスした雰囲気に仕上がりました。
キッチン位置はそのままに、イメージを一新するためシート貼りを行いました。
カウンターやカウンター下の収納及びバック収納は新規にて交換しました。
バック収納はLIXILリシェルSIシリーズをセレクト、高いものが取り出しやすい吊戸やカラー合わせがポイントです。
窓枠等にブラックに合わせ、ダクトレールにて黒を入れることで、引き締まった印象を与えてくれます。
浴室・洗面室・トイレ
共働きのためゆったりとくつろげる浴室をご希望、日々の疲れを癒してくれるTOTO「SYNLA」をご提案しました。
タオルや衣類等の収納に困らないよう、脱衣所や洗面化粧台周辺に造作にて大容量収納スペースを確保しました。
特に洗面化粧台の後ろは、洗濯物を畳むスペースにも使えます。可動式棚で収納する物により高さを調整することができます。
浴室の位置を変更したことによってできたスペースはウォークインクローゼットになりました。
3階・4階のトイレはアールを描くコンパクトなボディが魅力的はTOTO「ネオレストRS3」をセレクトされました。
レモンイエローや花柄の壁紙、タイル調やヘリボーン柄のクッションフロアが魅力的な明るくおしゃれな水回りに仕上げりました。
洋室・和室
4階の洋室3はホワイトカラーとブルーのペールカラーがアクセントのお部屋になりました。
4階のフローリングは上貼りで仕上げました。窓枠は塗装しています。
階段のクロスはイエローカラーで気持ちが明るくなります。
玄関・階段
玄関・階段も木目調で統一されナチュラルな空間を演出しています。
玄関扉は塗装し、床はフロアタイルを貼っています。クロス・巾木も貼り替えて一新しました。
臭いや湿度や気になる玄関には、エコカラットを貼ることをおすすめしました。
お客様からの声
こちらの要望をしっかりと聞いていただき、とても親身に対応していただきました。予想をこえる提案力に驚いています。仕上がりも満足しており、これから引っ越して住むのが楽しみです。
その他にも金銭面で、助成金や借り入れなど幅広く相談に乗っていただきとても安心できました。お願いして本当に良かったと思っています。ありがとうございました。
担当したスタッフよりメッセージ
この度は弊社をご利用いただき誠にありがとうございました。ご縁があってお任せいただきましたこと非常に嬉しく思います。M様のセレクトいただいた壁紙により、1つ1つのお部屋に個性が光るすてきな空間になりました。必要な場所に収納スペースを増やしましたので、使い勝手も大幅に改善されていると思います。
お忙しいM様ですので、寛げるお住まいになっていましたら幸いです。





