次の世代へと受け継がれてゆく新たな住まい
お父様が住まわれていたマンションに娘様が住まわれるため、より快適に今のトレンドを取り入れた間取りを目指しました。
特に水まわりは「位置」を変更することによって、使い勝手を格段に良くすることに成功しました。
ホワイトカラーとウッド調を基調とした比較的シンプルなお部屋ですが、これからご自身でお部屋を造っていく際に好みのインテリアと合わせやすく、流行に左右されにくいのがポイントです。
| 築年数 | 43年 |
|---|---|
| 地域 | 東京都文京区 |
| 工期 | 約1か月半 |
| 面積 | 約89㎡ |
| 施工箇所 | 全体 |
| 施工内容 | フルリノベーション |
| 施工費用 | 1083万円 |
| 使用商材・建材 | ・システムキッチン:クリナップ/ラクエラ/ペニンシュラ型 ・ユニットバス:TOTO/マンションリモデルWY1416 ・洗面台:造作/耐水カウンターPanasonic ・トイレ :TOTO/ZR1 ・フローリング:Panasonic/ベリティスフロアーW ・建具:Panasonic/ベリティスシリーズ |
お客様からのご要望
父が住んでいたマンションに自身が移り住むためのリノベーション。
水まわり(間取り変更含む)、リビングダイニングの床の張り替え、窓や和室もキレイにしたいと考えています。
予算は900万円程度を予定しています。
工事時期も考えており一度ショールームに伺いご相談したく、エルアップさんのホームページからお問い合わせしました。
エルリノからのご提案
水まわりの使い勝手や動線を検討し、孤立していたキッチンは中心にあった壁を取り払うことで、LDKを見渡せる今のトレンドにあった間取りをご提案。また、キッチンの位置が変更されたことでトイレの向きが変更できるようになり、浴室のサイズアップを叶えました。
トイレの向きを変更した際に残ったスペースは、可動式収納棚を設置することで無駄なく空間を有効活用しました。
幅を取っていた電気温水器から給湯器にすることでスペースが増え、洗濯パンと洗面台の間に広々とした収納棚を造作することができました。
漏水を心配されていた給湯給水配管もこの機会に入替を行いました。
リビング側の和室は洋室へ変更し、引き戸を開けるとつながりを感じる開放的な空間を堪能できるようになりました。
押し入れや和室前の収納はウォークインクローゼットにすることで、大容量収納も叶えました。
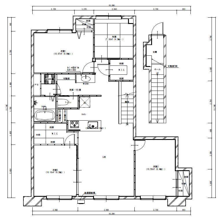
間取り図
中心にあった壁を取り払い、キッチンの位置やトイレの向きを変更しました。
リビング側の和室は洋室になり、引き戸を開けると広々とした空間を堪能できます。
施工前
施工後
LDK(リビング・ダイニング・キッチン)
キッチンから広々としたLDKが見渡せるようになりました。
中心にあった壁がなくなったことで1つの大きな空間になり、家族がどこにいても分かるため安心できます。
引き戸を開けると開放的な空間が広がり、窓からは光が差し込みます。
床には見切り材がないので、掃除をする際にぶつかることもなくスムーズです。
浴室・洗面室・トイレ
浴室はキッチンの位置とトイレの向きを変更したことで、1116サイズから1416サイズへサイズアップを叶えました。
お部屋と同じホワイトカラーと木目調で統一しています。
カーテンで目隠しをしていた脱衣所は、スペースを取らない折戸を設置することで脱衣スペースを確保し配慮しました。
電気温水器がなくなったことで、スペースが増え可動式収納棚や丸いフォルムが印象的な洗面台を設置しました。
洋室・和室
洋室和室ともにホワイトカラーの壁紙で一新しました。
どんな家具にも合わせやすく、シンプルでスッキリとした印象を与えます。
窓は既存にて一部枠交換、カーテンレールの取り付け・網戸の貼り替え・戸車の調節を行ってます。
玄関・階段
玄関・階段もお部屋と同じくホワイトカラーで統一しています。
7段の可動式収納棚は造作し、何かと荷物が多くなる玄関収納に役立ちます。
お客様からの声
ショールームでの相談から長い間大変お世話になりました。格段と使い勝手が良くなった水まわりに開放的なリビング、これからも愛着を持って住むことができそうです。ありがとうございました。
担当したスタッフよりメッセージ
この度は弊社をご利用いただき誠にありがとうございました。
色々とご協力いただけたことで、スムーズに工事をすすめる事ができました。
何かございましたら、いつでもご相談ください。





