性能向上と意匠美を両立させた居心地のよい家
「数値上の広さ」ではなく「体感の豊かさ」を追求。 徹底した構造確認を行い、断熱性能の向上とノイズ(不要なもの)を削ぎ落としたミニマルな意匠を両立させたフルリノベーション。
| 築年数 | 23年 |
|---|---|
| 地域 | 東京都足立区 |
| 工期 | 約2か月半 |
| 面積 | 約96㎡ |
| 施工箇所 | 全体 |
| 施工内容 | 間取り変更/水まわり/内装 |
| 施工費用 | およそ1800万円 |
| 使用商材・建材 | ・システムキッチン:LIXIL/リシェル/アイランド型 ・ユニットバス:LIXIL/リノビオV ・洗面化粧台:LIXIL/ルミシス ・トイレ :Panasonic/アラウーノ ・フローリング:大建/トリニティ ・建具:Panasonic/ベリティス ・窓サッシ:YKKap/プラマードU |
お客様からのご要望
中古マンションの購入したため、フルリノベーションを希望しています。イメージは落ち着いた雰囲気で格好良く魅せたい。断熱性の向上とキッチンの向きを変更させて、希望の間取りにしたい。
エルリノからのご提案
単なる「綺麗になったリフォーム」ではなく「住まいの性能と美観を追求したリフォーム」をご提案。「壁を吹かす(ふかす)」ことによる機能向上、既存の断熱材に重ねて断熱層を厚くし住宅性能を向上。生活感を排除し、照明や設備機器等の調和をはかりました。
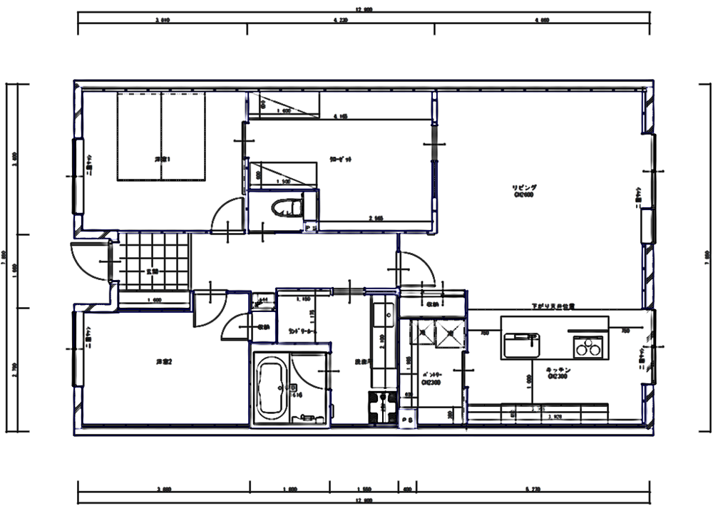
間取り図
キッチンを標準的な横向き配置から、回遊性のある効率的な動線へ変更。壁をあえて10cm手前に出すこと(吹かし壁)でインフラを集約、コンクリート構造では不可能だった配線の自由度を確保。LDKと寝室をクローゼットを介して繋げ、マンション特有の通風の悪さを解消。
施工前
施工後
LDK(リビング・ダイニング・キッチン)
一般的なマンションに多い「間取りに対して横向きのキッチン」を解消。配管ルートを確保し、回遊性のある使いやすい配置に変更。元々のコンクリート直(じか)の壁・天井では配線が露出してしまうため、あえて10cmほど壁を手前に出し(ふかす)、その隙間に配線やアンテナを通した。天井高の数値よりも「ノイズ(梁のデコボコ)がないこと」を優先。あえて10cmほど天井を下げてフラットにすることで、視覚的な広がりが感じられます。
浴室・洗面室・トイレ
グレーや黒、石目調、タイルを基調とした、落ち着いたダークトーンのデザインで統一。洗面やトイレはあえて「光が入らない場所」であることを逆手に取り、無理に明るくせず、シックで重厚感のある空間へ。
寝室・ウォークインクローゼット
LDKと寝室をクローゼットを介して繋げ、マンション特有の通風の悪さを解消。南北に風が抜ける、心地よい住環境を構築。
玄関周辺
お客様からの声
イメージ通り落ち着いた雰囲気で快適に過ごせています。ダウンライトと間接照明のみで生活していますが、暗さは全く感じません。風通しも良いので、気持ちよく過ごせています。





