ポップで個性的なこだわりHOME
現在住んでいるマンションのリノベーションを検討するようになったO様。エルリノの相談会からお問合せいただきました。
| 築年数 | 24年 |
|---|---|
| 地域 | 東京都台東区 |
| 工期 | 約2か月半 |
| 面積 | 約67㎡ |
| 施工箇所 | 全体 |
| 施工内容 | 間取り変更/水まわり/内装 |
| 施工費用 | 1245万円 |
| 使用商材・建材 | ・システムキッチン:クリナップ/セントロ/Ⅱ列型 ・ユニットバス:TOTO/マンションリモデルWYシリーズ/W1317 ・洗面化粧台:TOTO/オクターブ/W1050 ・トイレ :TOTO/ピュアレストQR/アプリコットF4A ・フローリング:大建/MYオトユカフロア ・建具:Panasonic/ベリティスシリーズ ・窓サッシ:YKK/プラマード ・収納:南海プライウッド |
CUSTOMER REQUEST
お客様からのご要望
現在住んでいるマンションのリノベーションを検討し,
エルリノの相談会に申し込みしました。リビングは隣の和室を取り込み広くしたい、キッチンは移動させ、パントリーを作りたいです。また荷物が多いので、収納スペースや棚を豊富にしたいと考えています。
PROPOSAL
エルリノからのご提案
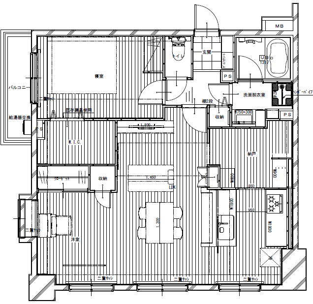
間取りについてはキッチンの位置と寸法から二列型をご提案しました。パントリーの他にキッチン裏にもカウンター下収納を設けました。
パントリーを介して回遊導線にすることでより広さを感じる間取りです。
旧和室側を仕切る案もありましたが、取り払いより広々としたLDKとしました。

間取り図
BEFORE
施工前
AFTER
施工後
LDK(リビング・ダイニング・キッチン)・納戸(パントリー)
隣接していた和室と洋室を取り込み広いリビングダイニングになりました。
念願のパントリー収納も叶いました。使いやすくするために、棚の位置や高さにもこだわりました。
浴室・洗面室・トイレ
機能性も整った使いやすい水まわりになりました。
寝室・WIC(ウォークインクローゼット)
こだわりのクロスでポップで明るくなりました。





